Hardy, kontrolliere mal bitte die Maße ...Hardy hat geschrieben:Danke Steini liefer ich heute Abend.
Hardy's Außenküche Deutschland
- Steini
- Administrator

- Beiträge: 14329
- Registriert: Di 2. Nov 2010, 15:46
- Wohnort: Herten, i. Westf.
- Kontaktdaten:
Re: Hardy's Außenküche Deutschland
Wer nichts weiß, muss alles glauben.
(Marie Freifrau Ebner von Eschenbach 1830-1916)
(Marie Freifrau Ebner von Eschenbach 1830-1916)
-
Hardy
Re: Hardy's Außenküche Deutschland
Steini
nun haust Du mich aber von den Socken!! Wie kommst Du denn zu den relativ genauen Daten.
Ja kontrolliere ich gleich mal. Hab mir schon einen Aufriss gemacht und will die Daten einzeichnen.
Du hast doch dann bestimmt noch Pläne vom Keller im Portfolio und kannst mir gleich noch meine "Versuchsküche" einplanen....
OK Spaß Beiseite.
Soeben ist die Skizze von der Terrassenüberdachung auch gekommen. Die Hölzer gebe ich nun in Auftrag. Wird passgenau (mit Schwalbenschwänzen und Co) geliefert und von mir vor Ort dann aufgeschlagen. Eindeckung bis zum Kamin mit einem Bitumendach. Da will ich über den Anrichte sowieso Schatten haben und ich kann die Beleuchtung dorthin integrieren. Zum Garten hin wird der Teil mit der Mauer geschlossen mit einer festen Glasscheibe.
Rest der Überdachung mit Plexiglas "Heatstop" Cool Blue AAA von Thyssen. 75% Absorption und ich spare mir die teuere und nie funktionierende Beschattung. Die Überdachung wird vorne eine Lichte Höhe haben von 228cm, damit wir noch fehlerfrei durchgucken können vom Wohnzimmer. Höchster Punkt der Balkenlage schließt mit einem Blech mit dem Flachdach ab.
Habe schnell noch ein paar Fotos gemacht. Wie man sieht ist die Mauer auf der Terrasse fast fertig. Heute soll da noch Strom in die linke Mauer verlegt werden, dann kommt noch eine Steinlage drüber und eine Betonplatte mit Fliesen kommt noch drauf. Gleiche Ausführung dann rechts vom Gasgrill.
Hier Blick von der Terrasse. Unten wo der Beulenputz ist kommt der Holzschuppen hin. Hinten liegt ein Balken, so breit wird die Balkenlage des Daches sein und es wird unwesentlich höher (vielleicht 5 cm) wie der Gartenzaun. Genau gesagt, so daß ich ohne Kopf anstossen reinlaufen kann. Da wo die gelbe Hauswand (Nachbarhaus) anfängt kommt der SBO und BBQ hin. Das Dach wird nur 188cm breit (so breit wie die Mauer auf der Terrasse) und jedoch 30 cm höher als das Dach des Holzplatzes, damit ich am Steinbackofen auch Besuch von längeren Gestalten haben kann.
Skizze vom Holzwerk. So wird das Ständerwerk ausschauen. Es wird alles weiß gestrichen und soll trotz der "Masse" luftig bleiben. Die Anrichte habe ich mal reinskizziert. Auch den Hang und die neue Treppe (ist fertig) reingemalt.
Heute Nachmittag machen wir dann mal Aufmass und ein paar mehr Fotos.
nun haust Du mich aber von den Socken!! Wie kommst Du denn zu den relativ genauen Daten.
Du hast doch dann bestimmt noch Pläne vom Keller im Portfolio und kannst mir gleich noch meine "Versuchsküche" einplanen....
Soeben ist die Skizze von der Terrassenüberdachung auch gekommen. Die Hölzer gebe ich nun in Auftrag. Wird passgenau (mit Schwalbenschwänzen und Co) geliefert und von mir vor Ort dann aufgeschlagen. Eindeckung bis zum Kamin mit einem Bitumendach. Da will ich über den Anrichte sowieso Schatten haben und ich kann die Beleuchtung dorthin integrieren. Zum Garten hin wird der Teil mit der Mauer geschlossen mit einer festen Glasscheibe.
Rest der Überdachung mit Plexiglas "Heatstop" Cool Blue AAA von Thyssen. 75% Absorption und ich spare mir die teuere und nie funktionierende Beschattung. Die Überdachung wird vorne eine Lichte Höhe haben von 228cm, damit wir noch fehlerfrei durchgucken können vom Wohnzimmer. Höchster Punkt der Balkenlage schließt mit einem Blech mit dem Flachdach ab.
Habe schnell noch ein paar Fotos gemacht. Wie man sieht ist die Mauer auf der Terrasse fast fertig. Heute soll da noch Strom in die linke Mauer verlegt werden, dann kommt noch eine Steinlage drüber und eine Betonplatte mit Fliesen kommt noch drauf. Gleiche Ausführung dann rechts vom Gasgrill.
Hier Blick von der Terrasse. Unten wo der Beulenputz ist kommt der Holzschuppen hin. Hinten liegt ein Balken, so breit wird die Balkenlage des Daches sein und es wird unwesentlich höher (vielleicht 5 cm) wie der Gartenzaun. Genau gesagt, so daß ich ohne Kopf anstossen reinlaufen kann. Da wo die gelbe Hauswand (Nachbarhaus) anfängt kommt der SBO und BBQ hin. Das Dach wird nur 188cm breit (so breit wie die Mauer auf der Terrasse) und jedoch 30 cm höher als das Dach des Holzplatzes, damit ich am Steinbackofen auch Besuch von längeren Gestalten haben kann.
Skizze vom Holzwerk. So wird das Ständerwerk ausschauen. Es wird alles weiß gestrichen und soll trotz der "Masse" luftig bleiben. Die Anrichte habe ich mal reinskizziert. Auch den Hang und die neue Treppe (ist fertig) reingemalt.
Heute Nachmittag machen wir dann mal Aufmass und ein paar mehr Fotos.
-
Hardy
Re: Hardy's Außenküche Deutschland
Das Holzlager
Die Deckenlage für das Holzlager habe ich schon. Balken von 240cm Länge. Ich bestelle also nur das Ständerwerk für hinten und vorne. Das Ständerwerk ist vorne etwas schmäler, damit ich auf jeden Fall in den Holzschuppen komme, auch wenn ich den Ofen links (also am Holzschuppen) hinbaue.
Das Holz ist soeben so in Auftrag gegeben worden.
Die Deckenlage für das Holzlager habe ich schon. Balken von 240cm Länge. Ich bestelle also nur das Ständerwerk für hinten und vorne. Das Ständerwerk ist vorne etwas schmäler, damit ich auf jeden Fall in den Holzschuppen komme, auch wenn ich den Ofen links (also am Holzschuppen) hinbaue.
Das Holz ist soeben so in Auftrag gegeben worden.
- Dateianhänge
-
- Bildschirmfoto 2014-06-30 um 11.42.01.png
- (83.08 KiB) 99-mal heruntergeladen
- Steini
- Administrator

- Beiträge: 14329
- Registriert: Di 2. Nov 2010, 15:46
- Wohnort: Herten, i. Westf.
- Kontaktdaten:
Re: Hardy's Außenküche Deutschland
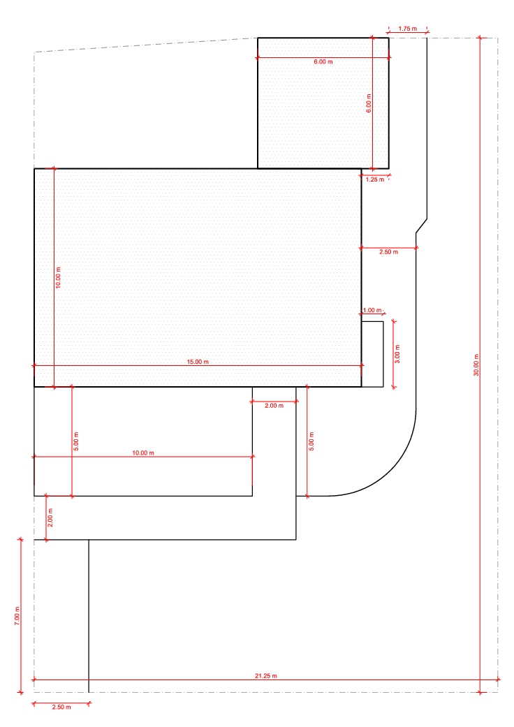
... eingearbeitet!Hardy hat geschrieben:Hier der Plan mit neuen Maßen und ein paar Ergänzungen..
Wer nichts weiß, muss alles glauben.
(Marie Freifrau Ebner von Eschenbach 1830-1916)
(Marie Freifrau Ebner von Eschenbach 1830-1916)
-
Hardy
Re: Hardy's Außenküche Deutschland
Genial Steini!
Danke. Dann will ich mal etwas puzzeln.
Nachtrag - Fertig gepuzzelt
Dann werde ich wohl ein paar qdm meines Holzlagers opfern und den Ofen so einbauen. Dann hat man von der Terrasse einfach eine schönere Sich auf das Ganze. Werde dann den Ofen von unten bis oben rund mauern. Den unteren Bereich mit den KS-Bruchsteinen wie auf der Terrasse und den oberen Bereich des Ofens mit Kratzputz. Daneben kommt dann nur noch der BBQ mit Höhenverstellung, ähnlich wie in Spanien. Die Räucherkammer werde ich anders lösen. Auf den Kochherd verzichte ich.
Danke. Dann will ich mal etwas puzzeln.
Nachtrag - Fertig gepuzzelt
Dann werde ich wohl ein paar qdm meines Holzlagers opfern und den Ofen so einbauen. Dann hat man von der Terrasse einfach eine schönere Sich auf das Ganze. Werde dann den Ofen von unten bis oben rund mauern. Den unteren Bereich mit den KS-Bruchsteinen wie auf der Terrasse und den oberen Bereich des Ofens mit Kratzputz. Daneben kommt dann nur noch der BBQ mit Höhenverstellung, ähnlich wie in Spanien. Die Räucherkammer werde ich anders lösen. Auf den Kochherd verzichte ich.
- Dateianhänge
-
- Ofen-linksa.jpg (129.62 KiB) 5411 mal betrachtet
-
Börni
Re: Hardy's Außenküche Deutschland
Hardy - wichtig ist Strom, dann kannst Du Dir einfach so eine Induktionskochplatte auf Deine Arbeitsfläche stellen. So ein Teil kostet nicht viel und man kann dann trotzdem draußen kochen.
Bei mir liegt so ein Teil auch im Schuppen
Aber die Frage ist immer noch, warum den Ofen nicht auf die Terrasse - dort wo auch der Kamin ist?
Platz wäre doch da genug?!
Und warum nicht den Hang im Bereich SBO/BBQ mit nutzen? - Also wenn der Ofen schon nicht auf die Terrasse soll....
Viel geblieben iss nu aber nicht mehr von Deiner ursprünglichen Planung

Bei mir liegt so ein Teil auch im Schuppen
Aber die Frage ist immer noch, warum den Ofen nicht auf die Terrasse - dort wo auch der Kamin ist?
Platz wäre doch da genug?!
Und warum nicht den Hang im Bereich SBO/BBQ mit nutzen? - Also wenn der Ofen schon nicht auf die Terrasse soll....
Viel geblieben iss nu aber nicht mehr von Deiner ursprünglichen Planung
- Novum64
- Feuertycoon

- Beiträge: 9402
- Registriert: Di 14. Jan 2014, 18:29
- Wohnort: Ebersbach/Fils
- Kontaktdaten:
Re: Hardy's Außenküche Deutschland
Ja, diese Induktionsplatten sind einsame Spitze. Kann ich auch nur empfehlen.Börni hat geschrieben:Hardy - wichtig ist Strom, dann kannst Du Dir einfach so eine Induktionskochplatte auf Deine Arbeitsfläche stellen. So ein Teil kostet nicht viel und man kann dann trotzdem draußen kochen.
Bei mir liegt so ein Teil auch im Schuppen![]()
Getoppt werden die nur noch von großen Gasbrennern.
Ich habe 2 mit 1800W (meist als Warmhalteplatten genutzt) und 1 mit 3000W. Auf der großen bekommt man einen 16L-Topf in vernünftiger Zeit zum Kochen. Im Sommer ist diese Einheit regelmäßig in Betrieb. Blanchieren von Gemüse, Rote Bete kochen, Tomatensoße reduzieren und der große 27L-Weck-Kessel passt auch prima drauf.
Dazu habe ich mir extra noch einen induktionsfähigen Dampfentsafter angeschafft. Holundersaft (färbt wie Sau
Herzliche Grüße aus dem Schwabenland
Martin
Unterschätze nie jemanden, der einen Schritt zurück macht. Er könnte Anlauf nehmen.
Dumme Gedanken hat jeder, aber der Weise verschweigt sie. (Wilhelm Busch)
Martin
Unterschätze nie jemanden, der einen Schritt zurück macht. Er könnte Anlauf nehmen.
Dumme Gedanken hat jeder, aber der Weise verschweigt sie. (Wilhelm Busch)
-
Börni
Re: Hardy's Außenküche Deutschland
Martin
Genau so mach ich es auch ... gerade bezogen auf den Induktionsentsafter
Machen wir auch nur noch im Freien .. das Entsaften
Genau so mach ich es auch ... gerade bezogen auf den Induktionsentsafter
Machen wir auch nur noch im Freien .. das Entsaften
-
Hardy
Re: Hardy's Außenküche Deutschland
@Börni
mach mich nicht fettisch! Aber ich glaube es reicht auch was ich habe. Es ist ja nicht wie in Spanien, wo man den ganzen Tag im Freien rummacht. Ich habe jetzt auf der Terrasse bald meine "Anrichte" soweit. Dort ist der Gasgrill stationiert und auch Platz geschaffen für eine Induktionsplatte und sonstiges Gedöhns. Ich mache wohl rechts einen Einbauschrank drunter und da kommt das ganze Zeugs rein.
Die 6 Stufen runter gehts dann zum Steinbackofen und dort ist auch der BBQ für Holzkohle. Klar wird es dort Strom geben und Platz ist immer noch genügend für eine Kochplatte. Ich muß die Kirche ja auch im Dorf lassen. So Gas wie Du gibst, solche Feste gibt es bei uns nicht mehr. Das legt sich dann alles und findet eher im Rahmen von max 6 Leuten statt. Also ich denke - es ist zwar kleiner als gewünscht - aber noch im Grünen Bereich.
Mein Tageswerk heute fiel klein aus. Heute Morgen war es Regnerisch und heute Mittag habe ich 2 Stunden in der Arztpraxis verbracht. Dem Lieblingsort eines Rentners - glaube ich.
Morgen möchte ich gerne die Anrichte einschalen und noch 4 Fundamentlöcher budden. Mehr nehme ich mir erst garnicht vor. Morgen ist nämlich Zahnarzt-Termin (....Rentner).
mach mich nicht fettisch! Aber ich glaube es reicht auch was ich habe. Es ist ja nicht wie in Spanien, wo man den ganzen Tag im Freien rummacht. Ich habe jetzt auf der Terrasse bald meine "Anrichte" soweit. Dort ist der Gasgrill stationiert und auch Platz geschaffen für eine Induktionsplatte und sonstiges Gedöhns. Ich mache wohl rechts einen Einbauschrank drunter und da kommt das ganze Zeugs rein.
Die 6 Stufen runter gehts dann zum Steinbackofen und dort ist auch der BBQ für Holzkohle. Klar wird es dort Strom geben und Platz ist immer noch genügend für eine Kochplatte. Ich muß die Kirche ja auch im Dorf lassen. So Gas wie Du gibst, solche Feste gibt es bei uns nicht mehr. Das legt sich dann alles und findet eher im Rahmen von max 6 Leuten statt. Also ich denke - es ist zwar kleiner als gewünscht - aber noch im Grünen Bereich.
Mein Tageswerk heute fiel klein aus. Heute Morgen war es Regnerisch und heute Mittag habe ich 2 Stunden in der Arztpraxis verbracht. Dem Lieblingsort eines Rentners - glaube ich.
Morgen möchte ich gerne die Anrichte einschalen und noch 4 Fundamentlöcher budden. Mehr nehme ich mir erst garnicht vor. Morgen ist nämlich Zahnarzt-Termin (....Rentner).
- Dateianhänge
-
- Wie Du siehst ist es schon "elektrifiziert"
- DSC01219.jpg (256.25 KiB) 5387 mal betrachtet
-
- Da kommt jetzt Links und Rechts eine Beton-Arbeitsplatte drauf und an die Rückwand noch ein ca. 30cm hoher Fliesenspiegel.
- DSC01218.jpg (161.98 KiB) 5387 mal betrachtet
Wer ist online?
Mitglieder in diesem Forum: 0 Mitglieder und 1 Gast