Neue Räucheranlage
- Steini
- Administrator

- Beiträge: 14330
- Registriert: Di 2. Nov 2010, 15:46
- Wohnort: Herten, i. Westf.
- Kontaktdaten:
Re: Neue Räucheranlage
Hallo Räucherfreaks,
bin jetzt auch dabei, meinen Räucherschrank zu planen.
Ich stelle mal die aktuelle Zeichnung als Diskussionsgrundlage ein.
LG, Steini
bin jetzt auch dabei, meinen Räucherschrank zu planen.
Ich stelle mal die aktuelle Zeichnung als Diskussionsgrundlage ein.
LG, Steini
Ein Gedanke, der richtig ist, kann auf die Dauer nicht niedergelogen werden.
(Otto von Bismarck 1815-1898)
(Otto von Bismarck 1815-1898)
-
hobbywurster
Re: Neue Räucheranlage
Das wird gut!
Sieht auch nach was "Hölzernem" aus.
Die "Aussparungen" bei den Rauchstock- Auflagen brauchst du nicht.
Die wirken beim späteren nur störend.
Also, die Auflagen einfach kantig machen.

Sieht auch nach was "Hölzernem" aus.
Die "Aussparungen" bei den Rauchstock- Auflagen brauchst du nicht.
Die wirken beim späteren nur störend.
Also, die Auflagen einfach kantig machen.
- Steini
- Administrator

- Beiträge: 14330
- Registriert: Di 2. Nov 2010, 15:46
- Wohnort: Herten, i. Westf.
- Kontaktdaten:
Re: Neue Räucheranlage
Hallo hobbywurster,
als "Rauchstöcke" würde ich gerne Buchenholz-Rundstäbe oder Aluminiumstäbe verwenden.
Somit wären die ausgesparten Auflager doch praktisch.
Die würden dann schön in die Aussparungen rutschen und hätten einen sicheren Halt.
LG, Steini
als "Rauchstöcke" würde ich gerne Buchenholz-Rundstäbe oder Aluminiumstäbe verwenden.
Somit wären die ausgesparten Auflager doch praktisch.
Die würden dann schön in die Aussparungen rutschen und hätten einen sicheren Halt.
LG, Steini
Ein Gedanke, der richtig ist, kann auf die Dauer nicht niedergelogen werden.
(Otto von Bismarck 1815-1898)
(Otto von Bismarck 1815-1898)
-
hobbywurster
Re: Neue Räucheranlage
Die ausgesparten Auflagen sind unpraktisch, weil du dadurch "Festpunkte" schaffst.
Das Rohr, oder die "Besenstiele" rollen auch ohne Aussparung nicht, da Last nach unten zieht.
Und du bist flexibler beim Aufhängen.

Das Rohr, oder die "Besenstiele" rollen auch ohne Aussparung nicht, da Last nach unten zieht.
Und du bist flexibler beim Aufhängen.
- Steini
- Administrator

- Beiträge: 14330
- Registriert: Di 2. Nov 2010, 15:46
- Wohnort: Herten, i. Westf.
- Kontaktdaten:
Re: Neue Räucheranlage
Hallo liebe Räucherfreaks,
im Zuge der Planung meines Räucherschrankes haben sich ein paar Fragen ergeben.
Wie sieht das mit dem Abgasrohr aus?
Sollte das nach oben wegführen, oder könnte man das auch nach vorne ableiten?
Welchen Durchmesser sollte das Abgasrohr haben
und aus welchem Material müsste es beschaffen sein? (zum Heißräuchern geeignet!)
Muss die Abluftöffnung regelbar sein, oder wird über die Zuluft geregelt?
Wie sieht es mit dem Fliegenschutz an der Zu- und Ablufteinheit aus?
Kann man engmaschiges Lochblech verwenden? Und wie eng müssen die Maschen sein?
Wie sieht es mit der Dämmung aus? Erforderlich? Wenn ja, aus welchem Material?
Fragen über Fragen. Wer kann helfen?
LG, Steini
im Zuge der Planung meines Räucherschrankes haben sich ein paar Fragen ergeben.
Wie sieht das mit dem Abgasrohr aus?
Sollte das nach oben wegführen, oder könnte man das auch nach vorne ableiten?
Welchen Durchmesser sollte das Abgasrohr haben
und aus welchem Material müsste es beschaffen sein? (zum Heißräuchern geeignet!)
Muss die Abluftöffnung regelbar sein, oder wird über die Zuluft geregelt?
Wie sieht es mit dem Fliegenschutz an der Zu- und Ablufteinheit aus?
Kann man engmaschiges Lochblech verwenden? Und wie eng müssen die Maschen sein?
Wie sieht es mit der Dämmung aus? Erforderlich? Wenn ja, aus welchem Material?
Fragen über Fragen. Wer kann helfen?
LG, Steini
Ein Gedanke, der richtig ist, kann auf die Dauer nicht niedergelogen werden.
(Otto von Bismarck 1815-1898)
(Otto von Bismarck 1815-1898)
-
Holli
Re: Neue Räucheranlage
Hallo Steini,
in technischen Dingen bin ich eine Graupe.
Aber ein paar Fragen kann ich beantworten.
Ich kenne nur Räucherschränke mit nach oben wegführendem Abluftrohr.
Mein Räucherschrank hat regelbare Zu-und Abluft. Aber wenn die einmal richtig eingestellt ist braucht man da nicht mehr dran.
Isolierung ist eine Glaubensfrage. Beim Heißräuchern praktisch, beim Kalträuchern eher nicht. Meiner ist nicht gedämmt.
Fliegenschutz ist unbedingt nötig. Am besten aus rostfreiem Fliegengitter.
Ich hoffe ich konnte ein kleines bischen helfen.
in technischen Dingen bin ich eine Graupe.
Aber ein paar Fragen kann ich beantworten.
Ich kenne nur Räucherschränke mit nach oben wegführendem Abluftrohr.
Mein Räucherschrank hat regelbare Zu-und Abluft. Aber wenn die einmal richtig eingestellt ist braucht man da nicht mehr dran.
Isolierung ist eine Glaubensfrage. Beim Heißräuchern praktisch, beim Kalträuchern eher nicht. Meiner ist nicht gedämmt.
Fliegenschutz ist unbedingt nötig. Am besten aus rostfreiem Fliegengitter.
Ich hoffe ich konnte ein kleines bischen helfen.
-
hobbywurster
Re: Neue Räucheranlage
Hallo zusammen!
@ Steini
"Abgasrohr" = Alu- Flexschlauch, 100mm Durchmesser
"Abluft" = Muß regelbar sein, da viel Frischluft unten gebraucht wird, sonst kann
der Sparbrand ausgehen.
"Fliegenschutz" = Ich hab Fliegen- Gaze aus Alu.
Unten zusätzlich Lochblech (Alu) 3mm als Tierschutz, da mein Räucherschrank
in einem Carport steht und für Katzen, usw. zugänglich ist.
- Steini
- Administrator

- Beiträge: 14330
- Registriert: Di 2. Nov 2010, 15:46
- Wohnort: Herten, i. Westf.
- Kontaktdaten:
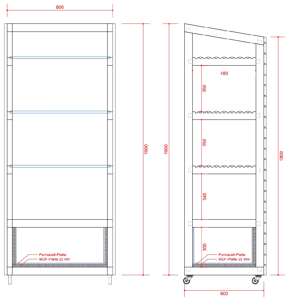
Re: Neue Räucheranlage
Update
Ich habe mal ein wenig weitergeplant.
Muss das Abgasrohr denn wirklich DN 100 sein?
Ansonsten würde ich mich über weitere Tipps freuen.
LG, Steini
Ich habe mal ein wenig weitergeplant.
Muss das Abgasrohr denn wirklich DN 100 sein?
Ansonsten würde ich mich über weitere Tipps freuen.
LG, Steini
Ein Gedanke, der richtig ist, kann auf die Dauer nicht niedergelogen werden.
(Otto von Bismarck 1815-1898)
(Otto von Bismarck 1815-1898)
-
hobbywurster
Re: Neue Räucheranlage
Ich hatte den Flexschlauch vorrätig, deshalb DN 100.
Kannst aber auch Flexschlauch DN50 nehmen
Die Temperaturbeständigkeit liegt bei ca. 200°C

Kannst aber auch Flexschlauch DN50 nehmen
Die Temperaturbeständigkeit liegt bei ca. 200°C
- Steini
- Administrator

- Beiträge: 14330
- Registriert: Di 2. Nov 2010, 15:46
- Wohnort: Herten, i. Westf.
- Kontaktdaten:
Re: Neue Räucheranlage
Hallo Gerhard,
wie hast du denn bei deinem Räucherschrank die Regulierung der Abluft konstruiert?
LG, Steini
wie hast du denn bei deinem Räucherschrank die Regulierung der Abluft konstruiert?
LG, Steini
Ein Gedanke, der richtig ist, kann auf die Dauer nicht niedergelogen werden.
(Otto von Bismarck 1815-1898)
(Otto von Bismarck 1815-1898)
Wer ist online?
Mitglieder in diesem Forum: 0 Mitglieder und 0 Gäste