Seite 13 von 31
Re: Gemeinschaftsprojekt "Holzbackofen" - Mobil
Verfasst: Di 22. Jan 2013, 16:14
von Steini
Umberto hat geschrieben:... meinst die oberste Platte reicht als Oberhitzenspeicher?
geht da nicht zu viel Wärme weg?
Meinst du man sollte sie breiter ausbilden, oder stärker?
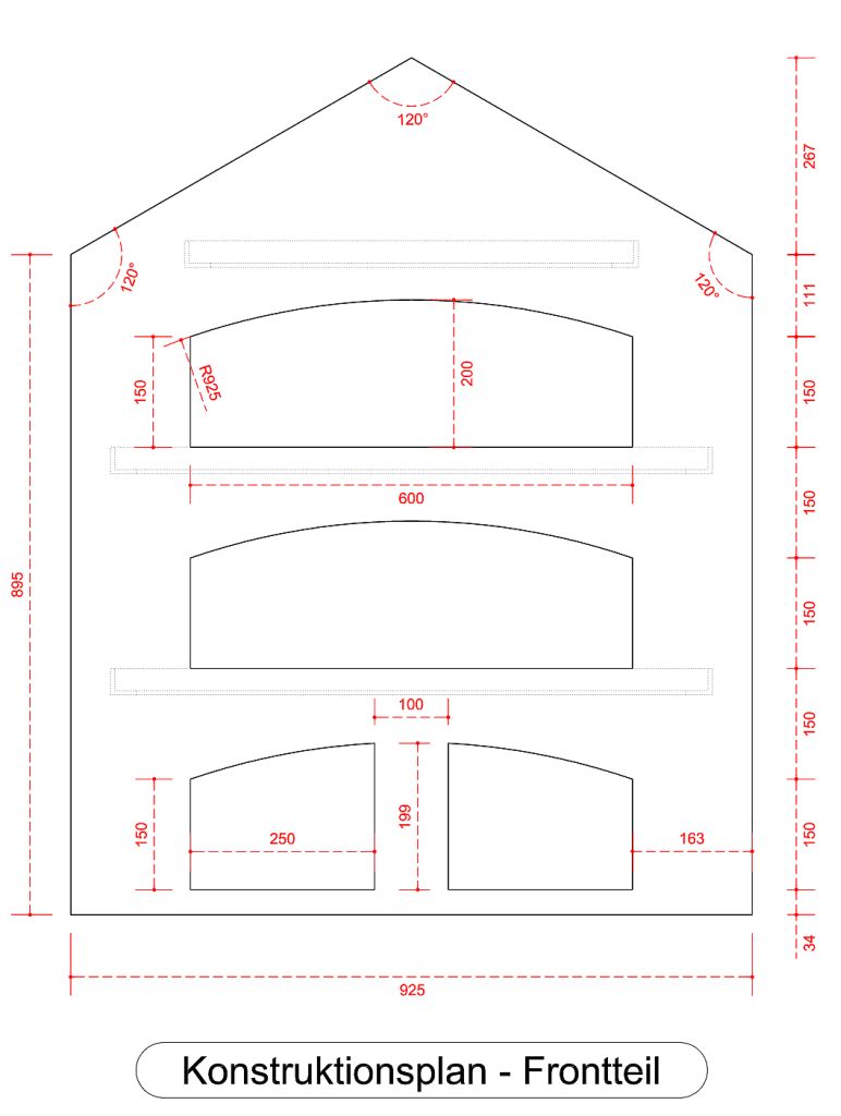
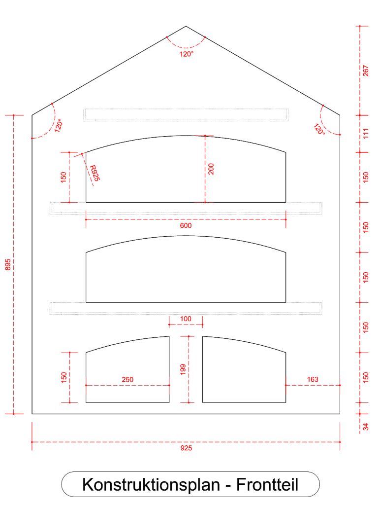
Ich habe mal mit der Darstellung der Einzelteile begonnen:
Vorderfront:

- Holzbackofen-Version-13-01-22(Front).jpg (57.1 KiB) 238 mal betrachtet
Die gepunkteten Linien stellen die innenliegenden Winkelrahmen dar, auf denen die Schamotteplatten liegen (S 235 JR, DIN 59370 - EN 10277 - 35/35/5 mm - scharfkantig gezogen).
Re: Gemeinschaftsprojekt "Holzbackofen" - Mobil
Verfasst: Di 22. Jan 2013, 16:28
von Umberto
vielleicht könnte die obere waagerechte Plattenreihe so breit wie der darunterliegende Boden sein?
Aber ich hab keine Ahnung ob das reicht oder ob es überhaupt notwendig ist. War nur so ein Punkt der mir aufgefallen ist.
Re: Gemeinschaftsprojekt "Holzbackofen" - Mobil
Verfasst: Di 22. Jan 2013, 20:59
von chris
Erstmal

Steini, saubere Arbeit.
Also mir würde die "einlagige" Variante auch reichen. Aber ich kann natürlich auch die große Variante als Prototyp bauen.
Steini, stellst du alle Einzelteilzeichnungen hier ein oder schickst du sie per Mail ?
Re: Gemeinschaftsprojekt "Holzbackofen" - Mobil
Verfasst: Di 22. Jan 2013, 21:07
von ar1
Bei uns in der Gegend verleiht ein Kachelofenbauer einen mobilen Kuppelbackofen auf einem 750kg-Anhänger.
Muss mal sehen wann jemand aus dem Ort diesen wieder mietet, dann kann ich mal Bilder machen.
Hat zwar nichts mit Steinis sehr guten Zeichnungen zu tun, aber ich denke das ist auch interessant.
Re: Gemeinschaftsprojekt "Holzbackofen" - Mobil
Verfasst: Di 22. Jan 2013, 21:08
von Steini
chris hat geschrieben:... Steini, stellst du alle Einzelteilzeichnungen hier ein oder schickst du sie per Mail ?
Ja, ich stelle sie erst einmal hier ein, dann könnt ihr mal einen Blick drauf werfen und dann schicke ich sie dir per Mail.
Kannst du auch dwg- oder dxf-Dateien gebrauchen?
Re: Gemeinschaftsprojekt "Holzbackofen" - Mobil
Verfasst: Di 22. Jan 2013, 21:11
von Steini
ar1 hat geschrieben:Muss mal sehen wann jemand aus dem Ort diesen wieder mietet, dann kann ich mal Bilder machen.
Gerne ... gute Idee!

Re: Gemeinschaftsprojekt "Holzbackofen" - Mobil
Verfasst: Di 22. Jan 2013, 22:35
von chris
Steini hat geschrieben:chris hat geschrieben:... Steini, stellst du alle Einzelteilzeichnungen hier ein oder schickst du sie per Mail ?
Ja, ich stelle sie erst einmal hier ein, dann könnt ihr mal einen Blick drauf werfen und dann schicke ich sie dir per Mail.
Kannst du auch dwg- oder dxf-Dateien gebrauchen?
Kannst du mal was schicken,dann teste ich es?
Re: Gemeinschaftsprojekt "Holzbackofen" - Mobil
Verfasst: Do 24. Jan 2013, 06:05
von Farmer3s
Moin
geiles Projekt! Ich hab ja meinen Wotan, den Ex Kaminofen. Der hat nur eine Backfläche, hier ziehen die Heizgase von hinten nach vorne über die Backfläche. Abzug sitzt vorn. Die Backfläche besteht aus einem Pizzastein, Vorteil dessen ist seine hohe Beständigkeit bei Temperaturwechsel und das er sau glatt ist. Zum Pizza machen ist das Ding genial, ich hab 15 Pers. damit beköstigt und das klappt super. Aufheizzeit liegt so max bei 50 min. Brot hab ich erst zweimal darin gemacht, geht aber auch ganz gut. Dazu hab ich aber im unteren Bereich noch ein paar Steine zur Speicherung reingestellt. Isolierung hab ich noch(!) nicht. Ist aber bei dem Kaminofen sehr leicht da er von Haus aus ja doppelwandig ist. Ich wünsch Euch viel Erfolg beim konstruieren und bauen.
Viele Grüße
Jörn
Re: Gemeinschaftsprojekt "Holzbackofen" - Mobil
Verfasst: Do 24. Jan 2013, 07:59
von Steini
Farmer3s hat geschrieben: ... Ist aber bei dem Kaminofen sehr leicht da er von Haus aus ja doppelwandig ist. Ich wünsch Euch viel Erfolg beim konstruieren und bauen...
Wir könnten die Rückseite auch aufdoppeln.
Das spart Schamottesteine und ermöglicht eine einfachere Fixierung der Auflagerahmen unter Beihaltung des erforderlichen rückwärtigen Abstandes für Flamme und Abgas.
Danke, Jörn, für den Hinweis.
Re: Gemeinschaftsprojekt "Holzbackofen" - Mobil
Verfasst: Do 24. Jan 2013, 12:19
von Steini
Ich habe jetzt alle Teile konstruiert.
Es handelt sich um die eingeschossige Schweißvariante mit rückwärtiger Doppelwand.
Als nächstes werde ich versuchen, die Einzelteile mit möglichst wenig Verschnitt auf dem üblichen Stahltafelmaß zu positionieren.
Danach fertige ich noch eine 3-D-Zeichnung an (evtl. Explosionsdarstellung) um zu überprüfen, ob alles passgenau konstruiert ist.
Hier erst einmal die Einzelteile:

- HBO-Seitenteile.jpg (27.73 KiB) 199 mal betrachtet

- HBO-Bodenteil.jpg (27.06 KiB) 199 mal betrachtet

- HBO-Dachteil.jpg (34 KiB) 199 mal betrachtet

- HBO-Türblatt.jpg (32.59 KiB) 199 mal betrachtet