HBO mit Grill

Hier können Steinbackofenfreunde ihre eigenen "Ofenprojekte" vorstellen
Antworten
muba-griller

HBO mit Grill

Beitrag von muba-griller »

Hallo an Alle !!

Nachdem ich jetzt schon was weiss ich wie viele Stunden hier gelesen habe denke ich, daß meine Planung nun steht.

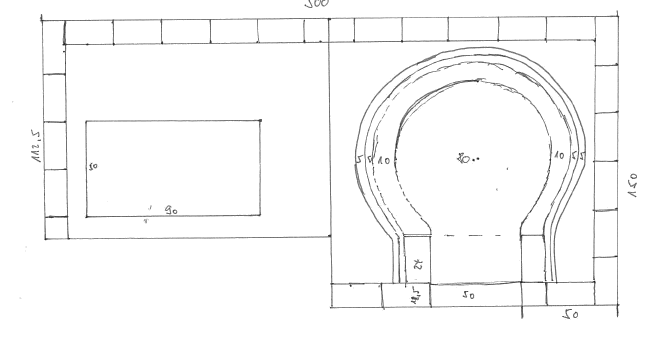
Hier mal eine Skizze wie die Frontansicht werden soll:

Links möchte ich einen Grill mit Deckel bauen, darunter eine Schublade in der die Grillkohle auf einem Rost brennt.

Rechts ein Kuppelofen mit einem Innendurchmesser von 80cm, geformt aus Feuerbeton, isoliert mit der Dreiecksmethode aus Foamglas und dann noch eine Schicht Steinwolle mit einem Putz darüber. Eine Ummauerung ist nicht vorgesehen, aber ein Dach über die gesamte Konstruktion, das von hinten nach vorne ansteigt. Die Rückwand soll aus roten Ziegelsteinen gemauert werden, die Wände an den Seiten sollen nach oben schmäler werden, dass es so aussieht als wäre die Wand da abgebrochen. Ich hoffe ich konnte es halbwegs verständlich erklären............
:frage:

Momentan beschäftigt mich die Frage ob die 80cm nicht zu groß sind als Durchmesser für die Backfläche. Was meint ihr, wie viele Brote und Pizzen bekomme ich da rein ?

Jetzt habe ich aber auch mal noch ne ganz andere Frage:
Wie stark sollte ich denn meine Bodenplatte betonieren ?? Sorry, wenn das ne doofe Frage ist, aber ich bin ein Bürohengst und hab da wirklich keine Ahnung.

Noch so ne Frage:
Welche Stärke sollten die Mauern des Sockels haben ? Geht das auch mit den Ziegelsteinen im normalen Format (24 x 11,5) ?

Danke schon mal für Eure Hilfe.

Zunächst hatte ich bedenken, ob ich so ein Projekt als nicht Handwerker überhaupt stemmen kann. Als ich aber hier im Forum gelesen habe wie toll da weitergeholfen wird bin ich zu dem Entschluß gekommen, ich versuch es einfach !!!!

Gruß
Steffen
Plan1.gif
Plan1.gif (22.35 KiB) 11738 mal betrachtet
Plan2.gif
Plan2.gif (16.85 KiB) 11738 mal betrachtet
Diavolo

Re: HBO mit Grill

Beitrag von Diavolo »

Hallo Steffen,

schöner Plan! :applaus:
muba-griller hat geschrieben:Momentan beschäftigt mich die Frage ob die 80cm nicht zu groß sind als Durchmesser für die Backfläche. Was meint ihr, wie viele Brote und Pizzen bekomme ich da rein ?
Brote:- so 6 bis max. 8 Ein-Kilo-Brote werden da reingehen.
Pizzen: da beim Pizzamachen typischerweise am Rand der Backfläche noch ein kleines Feuer unterhalten wird: 2 Stück gleichzeitig.
Ist aber kein Problem - bei der richtigen Temperatur ist so eine Pizza in 2 - 3 Minuten fertig! Du kannst also theoretisch 40 - 60 Pizzen in der Stunde raushauen...
muba-griller hat geschrieben:Noch so ne Frage:
Welche Stärke sollten die Mauern des Sockels haben ? Geht das auch mit den Ziegelsteinen im normalen Format (24 x 11,5) ?
Geht, ist kein Problem.
muba-griller hat geschrieben:Zunächst hatte ich bedenken, ob ich so ein Projekt als nicht Handwerker überhaupt stemmen kann. Als ich aber hier im Forum gelesen habe wie toll da weitergeholfen wird bin ich zu dem Entschluß gekommen, ich versuch es einfach !!!!
Seehr gut! :dafuer:

Und scheue Dich nicht, Fragen zu stellen - hier wirst Du geholfen. Ein "benütze zuerst die Suchfunktion" gibt es hier nicht!

:bier:
Nujen

Re: HBO mit Grill

Beitrag von Nujen »

Hallo Steffen.

Du baust quasi ähnlich wie ich (bin fast fertig).

und ich bin auhc kein Profi. Das schaffst du schon :zustimm:
Benutzeravatar
Steini
Administrator
Administrator
Beiträge: 14330
Registriert: Di 2. Nov 2010, 15:46
Wohnort: Herten, i. Westf.
Kontaktdaten:

Re: HBO mit Grill

Beitrag von Steini »

Hallo Steffen,

willkommen hier im Forum der :sbof: !
muba-griller hat geschrieben:... Momentan beschäftigt mich die Frage ob die 80 cm nicht zu groß sind als Durchmesser für die Backfläche. Was meint ihr, wie viele Brote und Pizzen bekomme ich da rein ?
80 cm Innendurchmesser sind völlig ausreichend für deine Bedürfnisse.
In solch einen Ofen bekommst du locker 10 1-kg-Brote.
Pizzen kann man sowieso nur max. 2 Stück gleichzeitig backen, da, wie Diavolo schon beschrieben hat, die Pizzen in 2 bis 3 Minuten fertig gebacken sind.
Wie stark sollte ich denn meine Bodenplatte betonieren ?? Sorry, wenn das ne doofe Frage ist, aber ich bin ein Bürohengst und hab da wirklich keine Ahnung.
Eine 15 bis 20 cm starke bewehrte Betonplatte auf frostsicherem Untergrund wäre optimal. Bei nicht frostsicherem Boden empfiehlt sich der Einbau zusätzlicher Streifenfundamente bis in frostsichere Tiefe (ca. 80 - 90 cm unter GOK).
Welche Stärke sollten die Mauern des Sockels haben ? Geht das auch mit den Ziegelsteinen im normalen Format (24 x 11,5) ?
Mit einem 24 cm starken Mauerwerk bist du auf der sicheren Seite! :gut:
Zunächst hatte ich bedenken, ob ich so ein Projekt als nicht Handwerker überhaupt stemmen kann. Als ich aber hier im Forum gelesen habe wie toll da weitergeholfen wird bin ich zu dem Entschluß gekommen, ich versuch es einfach !!!!
Klar, das wirst du mit unserer Hilfe in jedem Fall schaffen!
Ein Gedanke, der richtig ist, kann auf die Dauer nicht niedergelogen werden.
(Otto von Bismarck 1815-1898)
Benutzeravatar
Ottis Eicher
Feuertycoon
Feuertycoon
Beiträge: 1434
Registriert: Mo 18. Jul 2011, 12:28
Kontaktdaten:

Re: HBO mit Grill

Beitrag von Ottis Eicher »

Hallo Steffen,

wilkommen im Forum. Steinis Ausführungen ist nichts hinzuzufügen und
wer ist schon perfekt!

Nur wer es angeht kann auch was fertig stellen.
Gruß aus dem Sauerland

Ottis Eicher
Hardy

Re: HBO mit Grill

Beitrag von Hardy »

Dann mal viel Elan beim basteln.

Ich baue auch gerade in Spanien. Ebenfalls eine BBQ und Backofen-Kombi. Den Grill habe ich letztes Jahr fertiggestellt. Der Backofen folgt jetzt.

Viel Erfolg, das wird schon.

ich habe als Dipl. Betriebswirt auch mehr Ahnung vom Trinken und es hat dennoch geklappt!
kliff

Re: HBO mit Grill

Beitrag von kliff »

Hallo muba-griller,

wie Steini schreibt muß bei einer Betonplatte auch der Untergrund frostsicher sein. Was meistens bedeutet das man erstmal einen frostsicheren Untergrund errichten muss.(Kiesbett+Folie..dann Bewährung + B25 Beton) Bei der Traglast einer bewährten Betonplatte gibt es eine alte Bauernregel die besagt bei 10 cm bewährter Betonplatte ca.200t Belastungsgrenze.( oder waren es 20 t,bin jetz nicht sicher, zu lange weg vom Bau :pfeifend: ..)
Solltest Du Sichtmauerwerk mit Klinkersteinen errichten wollen ,empfehle ich Dir den Vormauermörtel zu nehmen,lässt sich besser verarbeiten ist hochwertiger gegen Salzverblühungen etc pp.

Viel Erfolg :zustimm:

LG Volker
muba-griller

Re: HBO mit Grill

Beitrag von muba-griller »

Guten Morgen !!!!

Vielen Dank schon mal für Eure Antorten.

@kliff
Wenn 10 cm Betonstärke 20 Tonnen aushalten sollte das doch allemal reichen, oder ?
Ich möchte ja schliesslich kein Hochhaus drauf stellen.

Habe aber mal noch ne Frage: Wie viel Kies benötige ich für 1 m³ Beton ?

Ich würde schon gerne mit Klinkern ein Sichtmauerwerk errichten, bin mir aber 1. nicht sicher ob die Wandstärke von 11,5 cm ausreicht und 2. weiss ich nicht wie ich das dann bei der Zwischendecke machen soll, damit man aussen keinen Beton sieht. Wenn ich die Betondecke nur halb auf das Mauerwerk auflegen würde wären das ja nur gute 5 cm. Denke mal das ist zu wenig, oder ?

So heute möchte ich jetzt mal den endgültigen Standort festlegen und dann die notwendige Rodungsaktion durchführen. Es stehen da nämlich noch ca 2m hohe Tujahecken im Wege...........

Gruß
Steffen
kliff

Re: HBO mit Grill

Beitrag von kliff »

Hallo muba-griller,

wie Steini schon schrieb ist eine Wandstärke von 24cm zu empfehlen. Betonplatten werden immer auf 20-30 ....cm Stärke gebaut.Ich wollte mit dem Beispiel von 10cm nur zum Ausdruck bringen,daß man sich über die Tragfähigkeit der Betonplatte nicht zuviel den Kopf zerbrechen sollte,jedenfals nicht bei einen Brotbackofen.

Solltest du eine Betonplatte machen und eine Stahlmatte dazu einbringen,würde ich die Betonmasse auf 12cm einbringen, mit einer Gartenharke ein bisschen gerade ziehen dann die Stahlmatte in den Beton eindrücken dann die restlichen 8cm auftragen.

zur Frage mit dem Kies : ich würde den B25 nicht selber mischen da das Mischverhältniss bei Beton schon bei geringster Abweichung des Wasser zum Beispiel negativ wirkt ,beim selber Mischen muss man schon maße einhalten ob das bei Kies oder Zement/Wasser zugabe gewährt ist bezweifle ich,jedenfals wäre mir der zeitliche Aufwand zu hoch. Ob man jetz 1-2%Spüli( bezieht sich auf den Zement) noch als Fließmittel einsetz um den Beton gut fließend zu gestalten ist Ansichtssache.

Ein Freifallmischer hat ca100l Fassungvermögen 0,1m³ da ist der Aufwand zu gewaltig ,schon mal ich keinen kenne der Decken oder Betonplatten mit einen Freifallmischer mal nebenbei selber herstellt,da eher einen Zwangsmischer und auch das ist zu umständlich.(Zeit +Aufwand +Kosten zu hoch...)

Geh zu einer Betonstation und lass die den Beton liefern oder hol ihn dort selber ab. ( als Selbstabholer ist erdfeucht zu empfehlen,transportiert sich besser..)

LG Volker

Beispiel:

Zementgehalt C25/30 :300kg/m³

w/z ca... 0,60
Gehalt an Gesteinskörnung bei 0/16 für 1 m³ Beton ca 1900kg/m³

alles ohne Gewehr nur mit Pistole :pfeifend:
Diavolo

Re: HBO mit Grill

Beitrag von Diavolo »

@kliff:

das hört sich so an, als ob Du Dich auskennst. :respekt:
kliff hat geschrieben:Ein Freifallmischer hat ca100l Fassungvermögen 0,1m³ da ist der Aufwand zu gewaltig ,schon mal ich keinen kenne der Decken oder Betonplatten mit einen Freifallmischer mal nebenbei selber herstellt,da eher einen Zwangsmischer und auch das ist zu umständlich.(Zeit +Aufwand +Kosten zu hoch...)
Ähem... :pfeifend:
Also, ich hab beide Platten (Grundplatte und Ofenplatte) mit dem Freifallmischer hergestellt - und ich glaube,
dass ich nicht der einzige hier bin, sondern die allermeisten das so gemacht haben :frage:
Antworten

Zurück zu „Steinbackofen-Projekte“

Wer ist online?

Mitglieder in diesem Forum: 0 Mitglieder und 2 Gäste